Nouvelle Vie pour une Ancienne Grange
Mes clients, propriétaires d’une grange de 51 m² dans un village de montagne, rêvaient d’en faire un cocon pour leurs vacances et week-ends en famille. À l’origine, il n’y avait que quatre murs en pierre, un toit et un sol en terre battue : tout restait à inventer.
Les solutions apportées
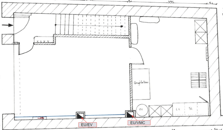
- Au rez-de-chaussée : un grand garage et une buanderie, pensés pour accueillir la voiture et ranger tout le matériel (ski, randonnée, vélos…). L’isolation du plafond assure un confort thermique optimal à l’étage.
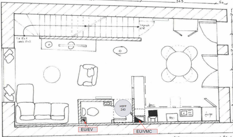
- Au premier étage : une grande pièce de vie lumineuse avec cuisine ouverte. Deux anciennes ouvertures ont été réunies pour créer une baie généreuse et offrir un lien direct avec la nature.
- Au deuxième étage : trois chambres et une salle d’eau, aménagées sous combles. Les chambres sont compactes mais fonctionnelles, compensées par l’espace convivial du niveau inférieur.




Espace nuit au 2nd étage
Garage
Buanderie






Espace de vie au 1er étage
















Mon approche
Pour révéler tout le potentiel de cette grange, j’ai étudié plusieurs scénarios avant de définir un projet détaillé et cohérent, étage par étage. Mon rôle a été d’optimiser chaque mètre carré, de favoriser la lumière naturelle et de créer une ambiance familiale à la fois pratique et accueillante.
Photos AVANT
Chambre parentale
Chambre parentale
Résultat attendu
Le projet a été mené jusqu’au dépôt du permis de construire (surface inférieure à 150m²), avec l’ensemble des documents techniques nécessaires. Les travaux sont en court.
À terme, cette ancienne grange deviendra un refuge chaleureux, un lieu de ressourcement pour mes clients et leurs deux enfants, pensé pour conjuguer confort moderne, authenticité et moments partagés.
Et vous ? Vous avez un bien atypique ou une maison ancienne que vous rêvez de transformer ?
Le défi
Créer une véritable maison secondaire, chaleureuse et fonctionnelle, à partir d’un volume brut et contraint. Leur souhait : retrouver le charme de l’ancien tout en profitant du confort moderne, dans un lieu où recevoir famille et amis, se ressourcer après une journée de ski ou de randonnée, et partager de vrais moments ensemble.
Emilie
Un lieu sur-mesure
Les besoins identifiés ensemble :
- Une pièce de vie conviviale et baignée de lumière.
- Une cuisine fonctionnelle avec grands plans de travail.
- Trois chambres accueillantes pour la famille, plus un canapé-lit pour les invités.
- Des rangements bien intégrés pour les affaires du quotidien.
- Un garage et des espaces pratiques (buanderie, garde-manger).
Les vues projetées
Chambre D.
Chambre Q.
Chambre D.
Chambre Q.
Me Contacter
Adéquation By Emilie
Emilie Robert
4 rue du 8 mai 1945
31170 Tournefeuille
07.83.90.85.69
Adequationbyemilie@gmail.com
