Petit budget, grand charme – Projet T2 meublé
Ce T2 avait besoin d’un vrai coup de frais avant sa mise en location.
L’objectif était clair : en faire un logement attractif pour un étudiant ou un jeune actif, avec un budget limité.
Le piège à éviter ? Tomber dans le “catalogue suédois”, impersonnel et sans âme.
Les solutions apportées
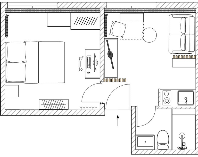
Création d’une entrée définie grâce à l’implantation du mobilier.
Séparation subtile entre cuisine et salon avec des claustras judicieusement positionnés, qui rythment l’espace et donnent une sensation de grandeur.
Aménagement d’un séjour accueillant : coin télé, espace repas lumineux et mobilier chaleureux.
Chambre cocon avec tête de lit en rotin et matières naturelles.
Cuisine optimisée, facile à vivre et à entretenir.
Mélange neuf / seconde main, pour rester dans le budget sans sacrifier le style.






Mon approche
Pour donner de la valeur au bien, j’ai choisi de mixer les sources de mobilier :
une base pratique et accessible avec quelques pièces IKEA,
du mobilier chiné et de seconde main pour apporter de l’authenticité,
des touches déco pour réchauffer l’ensemble et créer un style unique.
Et surtout, j’ai repensé les volumes pour donner une impression d’espace dans un petit logement.
Photos AVANT
Résultat attendu
Le T2 est désormais un logement prêt à vivre, chaleureux et séduisant.
La création de l’entrée et la séparation cuisine/salon transforment la perception de l’espace, qui paraît beaucoup plus grand qu’il ne l’est en réalité.
Grâce à ce travail, le logement sort du simple “appartement meublé standard” pour devenir un lieu où l’on se projette immédiatement.
Le défi
Concevoir un intérieur chaleureux et fonctionnel, avec du caractère, tout en respectant un budget serré.
Emilie
Résultat final


Proposition d'aménagement












Emilie
Crédits photos : Colocatère
Me Contacter
Adéquation By Emilie
Emilie Robert
4 rue du 8 mai 1945
31170 Tournefeuille
07.83.90.85.69
Adequationbyemilie@gmail.com
